Ketham's Atelier Architects
Menu
Skip to content
ABOUT US
News
Speaker at JOSH Talks
Lecture at IIT
Lecture at NIFT
Press Release_ International Competition 01
Projects Exhibition in U.A.U.I.M. Romania.
Projects in International Festival Austria
Lecture at University of Innsbruck
Review at University of Innsbruck
Ketham Santosh Kumar
Team
Teaching pedagogy
Talks and Interviews
Publications
Studio
KETHAM’S ATELIER ARCHITECTS
Architecture
in the shadows
commUnity space
vOid
taTva
waLk
Frame
leVels
my House
New york stock (facade)change….
porous
Industrial Design
THW trophy
R-300
Slide
Balance
Fins
Curve X
Ketham’s Atelier trophy
Research
bmd Watch
A place for lOst sOuls
THINKING HAND NGO
Building One in One
Juvenile Classroom India
Thinking Hand Exhibitions
Exhibition 01
Exhibition 02
Exhibition 03
Workshops
Thinking Hand Workshop 01
Thinking Hand Workshop 02
Thinking Hand Workshop 03
Thinking Hand Workshop 04
Thinking Hand Workshop 05
Thinking Hand Workshop 06
Thinking Hand Workshop 07
Thinking Hand Workshop 08
Thinking Hand Workshop 09
Thinking Hand Workshop 10
Thinking Hand NGO Workshop on Design – Thesis – Motivation
Sessions
Architectural Drawing
Architectural Sketching
Sketching – Austria in India
Competitions
Low cost Furniture Competition
Innovative Furniture Competition
CONTACT
JOBS
SHOP
T-Shirt
«
»
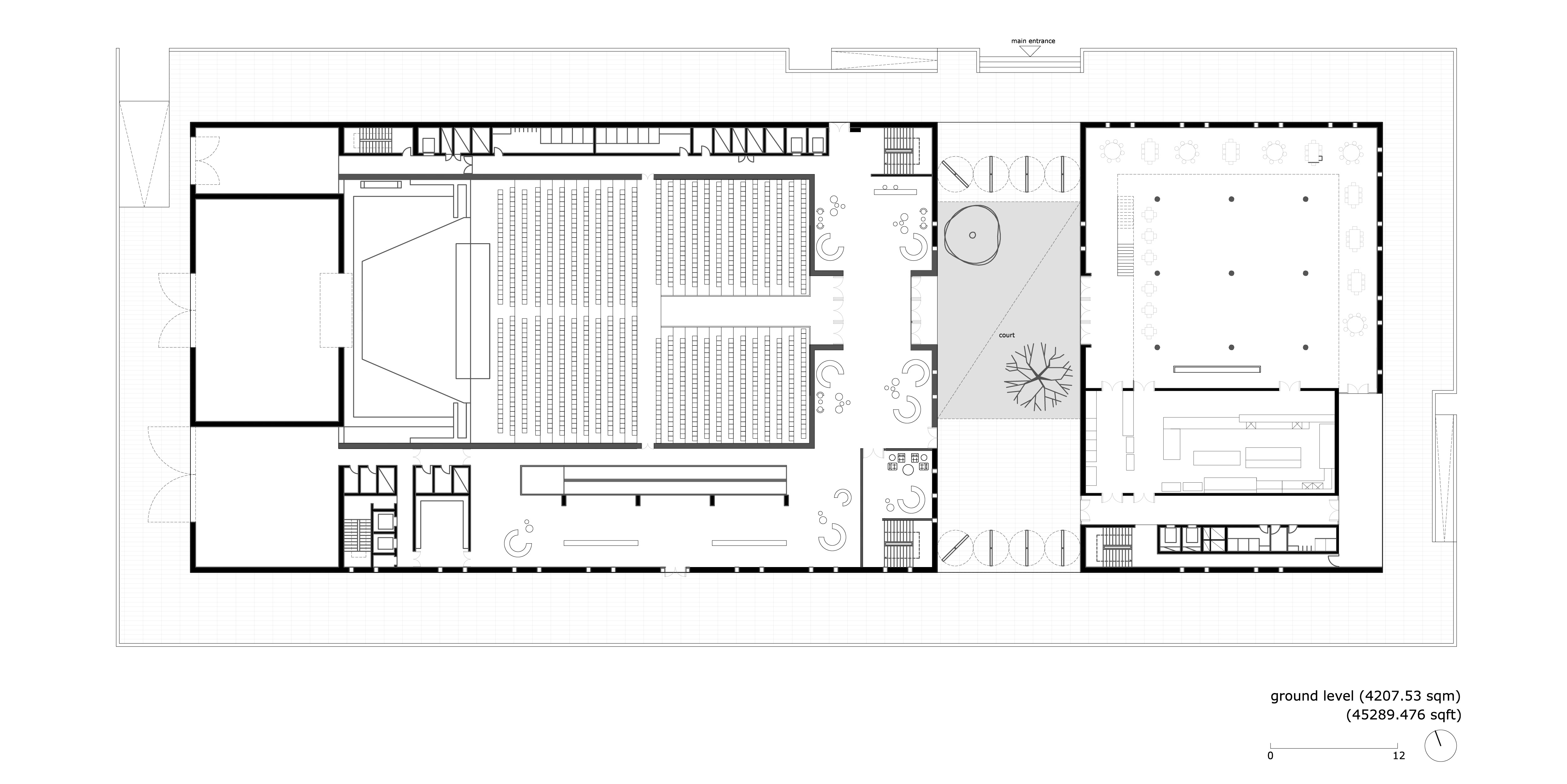
Community Auditorium Adilabad
Like
Loading...
Leave a comment
x
Δ
Subscribe
Subscribed
Ketham's Atelier Architects
Sign me up
Already have a WordPress.com account?
Log in now.
Ketham's Atelier Architects
Subscribe
Subscribed
Sign up
Log in
Copy shortlink
Report this content
View post in Reader
Manage subscriptions
Collapse this bar
%d